Our Services

Landscape Architecture

Landscape architecture is far more than arranging plants and stone. It is the discipline of reading a site — its contours, its light, its relationship to the structures it surrounds — and composing an outdoor environment that feels both intentional and inevitable. At Exterior Images, this is the foundation of everything we do.

With over forty-five years of practice and active licenses in Nebraska and California, we bring the technical precision of registered professionals and the creative instinct of designers who have spent decades studying how people live outdoors. Every project begins not with a drawing, but with a conversation.

The Foundation

Site Planning & Analysis

Before a single line is drawn, we study the land. Drainage patterns, sun exposure, soil conditions, prevailing winds, existing vegetation, and the architectural character of adjacent structures all inform the design direction. This analysis ensures that what we create is not imposed upon the site but drawn from it.

Our site plans address grading, drainage, utility routing, and spatial relationships — the invisible framework that determines whether a landscape thrives for decades or struggles from the start. We also review homeowner association guidelines and municipal codes to ensure every element meets regulatory requirements.

Hand-rendered watercolor site plan by Exterior Images
Bringing Vision to Life

3D Visualization & Design

We translate concepts into detailed 3D renderings that allow you to walk through your future landscape before a single shovel breaks ground. These visualizations reveal how spaces will feel, how light will play across surfaces, and how plantings will mature over time.

From concept sketches to refined presentations, our design process is collaborative. We present options, discuss materials and plant palettes, and refine every detail until the design captures your vision with precision. The result is a landscape that feels as though it has always belonged.

3D aerial visualization of landscape design
From Design to Reality

Construction Documents

A beautiful rendering means nothing without the technical documentation to build it accurately. Our construction documents include detailed planting plans with species, sizes, and spacing; hardscape layouts with material specifications and structural details; grading and drainage plans; irrigation layouts; and lighting plans.

These documents serve as the contract between vision and execution — ensuring that contractors, craftsmen, and installers deliver exactly what was designed. We can also provide construction oversight to verify that the finished landscape matches the approved plans.

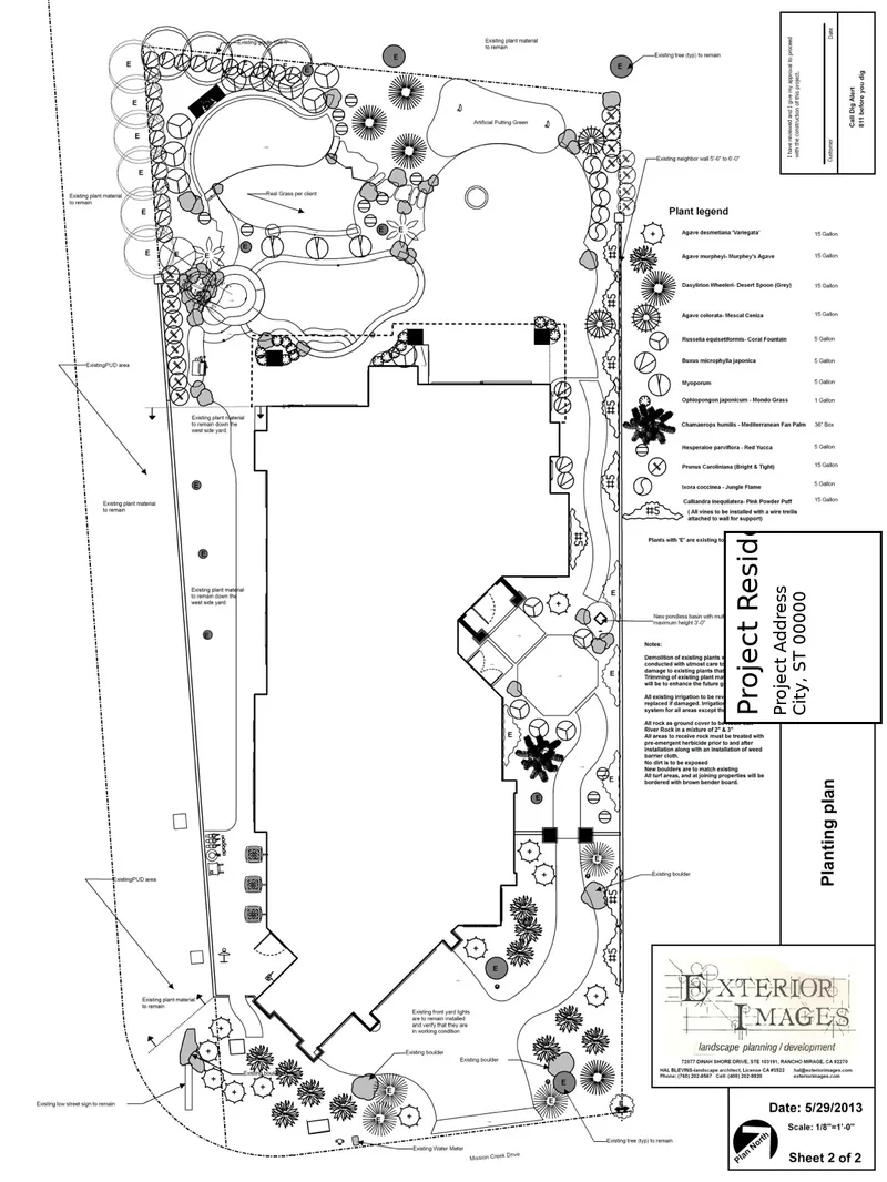
Detailed planting plan showing species selection, spacing, and bed layouts
Planting Plan — Species & Spacing Detail
How We Work

Our Design Process

Every project follows a proven four-step journey from initial conversation to completed landscape.

1. Consult

An initial conversation about your site, lifestyle, and aspirations for the space. We listen before we design.

2. Design

Detailed concept plans, 3D renderings, and material selections bring the vision into focus.

3. Refine

Collaborative refinement of every detail until the design feels exactly right.

4. Build

Construction documents and oversight ensure the finished landscape matches the approved design.

Ready to Design Your Landscape?

Every great outdoor space begins with a conversation about how you want to live.

Request a Consultation